Furniture Works
Furniture Works
Commercial Furniture Design
Scroll down to explore more.
Scroll down to explore more.
Works from GeumSeong Furniture Company
Works from GeumSeong Furniture Company
I held one-on-one consultations with clients to understand their spatial needs, aesthetic preferences, and functional requirements. Using these insights, I designed customized furniture for various environments, including cafés, offices, and franchise spaces. I created detailed 3D models in SketchUp to visualize form, proportion, and materiality, enabling clients to review and approve the designs. Once finalized, I worked with external fabrication partners to oversee production and ensure the delivery of high-quality, design-consistent furniture pieces.
I held one-on-one consultations with clients to understand their spatial needs, aesthetic preferences, and functional requirements. Using these insights, I designed customized furniture for various environments, including cafés, offices, and franchise spaces. I created detailed 3D models in SketchUp to visualize form, proportion, and materiality, enabling clients to review and approve the designs. Once finalized, I worked with external fabrication partners to oversee production and ensure the delivery of high-quality, design-consistent furniture pieces.
Work Process and Final Results
Work Process and Final Results









Cafeteria customized Tables & Couches
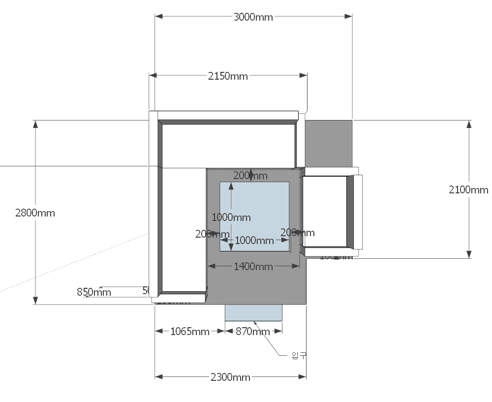
After an on-site visit to measure the cafeteria space, the color, texture, and design were determined through a 1:1 consultation with the client. The furniture was then manufactured and delivered through outsourcing.
After an on-site visit to measure the cafeteria space, the color, texture, and design were determined through a 1:1 consultation with the client. The furniture was then manufactured and delivered through outsourcing.









Cafeteria Customized Built-In Couches
After an on-site visit to measure the cafeteria space, the color, texture, and design were determined through a 1:1 consultation with the client. The built-in couches were then manufactured and delivered through outsourcing.
After an on-site visit to measure the cafeteria space, the color, texture, and design were determined through a 1:1 consultation with the client. The built-in couches were then manufactured and delivered through outsourcing.









Wall Shelves at Pizza Restaurant
The color and material for the wall shelves were determined based on the client's needs and the site's concept, followed by the manufacturing process.
The color and material for the wall shelves were determined based on the client's needs and the site's concept, followed by the manufacturing process.












Built-In Couches
After an on-site visit to measure the restaurant space, the color, texture, and design of the built-in couches were determined through a 1:1 consultation with the client.
After an on-site visit to measure the restaurant space, the color, texture, and design of the built-in couches were determined through a 1:1 consultation with the client.









Customized Module Couches and Tables
Design for modular couches and tables to be installed in a cafe. Each couch can be separated and combined, allowing for flexible use of the space.
Design for modular couches and tables to be installed in a cafe. Each couch can be separated and combined, allowing for flexible use of the space.






Customized Couches and Side-Tables at Screen Golf Club
Couches and side-tables for a golf club. The side-tables were custom-made to allow for the installation of a screen golf camera and a coat rack.
Couches and side-tables for a golf club. The side-tables were custom-made to allow for the installation of a screen golf camera and a coat rack.